3518 Sheffield Avenue
Hammond, IN
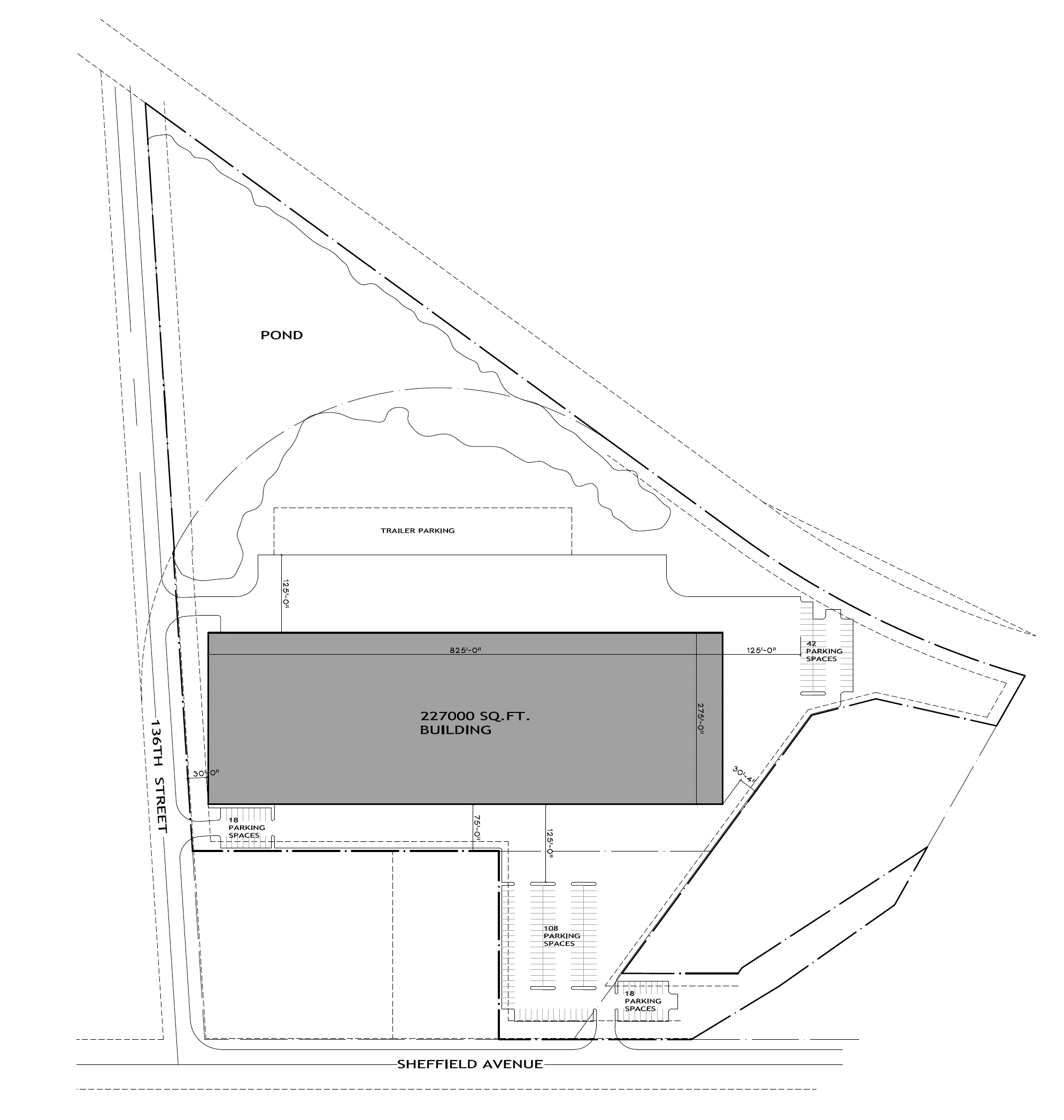
Property Features
Spec Development
Modern, precast rail-served green industrial facility with flexible layout configuration
225,000 SQ FT divisible into 50,000 SQ FT units
Within minutes of the Illinois border and only 21 miles from Downtown Chicago
Only 1,500 feet to the toll road on ramp at Calumet Avenue; 5 miles to I-90 and I-94
Economic incentives available
Ideal for manufacturing, logistics and distribution
Building Specifications
Site Size: 18 acres
Total Building Size: 225,000 SQ FT
Total Space Available: 225,000 SQ FT
Divisible to: 50,000 SQ FT
Office Size: 1,000 SQ FT
Ceiling Height: 32' clear ceiling height
Loading: 10 truck docks expandable to 40 with 3 drive in doors
Loading Bay: 50' x 60'
Available Power: 1,200 amp - expandable
Lighting: LED
Column Spacing: 50' x 50'
Car Parking: 186 spaces
Truck Parking: 60
Fire Suppression: ESFR sprinkling system
Floor Thickness: 6" 3500 PSI concrete
Zoning: Industrial
Availability: Immediately
Asking Lease Rate: Negotiable
Property Taxes: Tax Abatement negotiable
Contact us to discuss this property and how it can work for your business.
